גשר 101-102 בכביש 16; בביצוע שותפות שפיר פיצרוטי
מוצא, ירושלים,
ישראל
- אורך כל גשר הינו 380 מ'.
- מפתח בין נציבי האמצע הינו 90 מ'.
- הגשרים מבוצעים בשיטת "זיז מאוזן" (Balanced Cantilever). שיטת ביצוע זו מתאימה כאשר לא ניתן להקים מגדלי תמיכה, אילוצים של טוואי השטח, וכאשר המפתח בין הנציבים הינו בין 80 ל-200 מ'.
מקום
-
יציקה סימולטנית ומאוזנת במקטעים של 5.3 מטר
היציקה מתבצעת במקטעים של 5.3 מ' משני צידי הנציב באופן סימולטני ומאוזן.
-
מותאם לתנאי השטח הטופוגרפיים
שיטת הביצוע מתאימה לאילוצי טוואי הקרקע.
-
השכרת 90% מציוד הפרויקט לחיסכון מרבי בעלויות
אספקת 90% מציוד הפרויקט בהשכרה הביא לחסכון וכלכליות הפרויקט.
-
תכנון משולב של צוותי מהנדסים בינלאומיים
תכנון מורכב ומשולב בין מהנדסי פרי ישראל, מחלקת ההנדסה בפרי גרמניה ומחלקת ההנדסה של פרי פולין, המתמחה בתכנון מערכות לביצוע גשרים בשיטת הזיז המאוזן.
-
הטבות
תמיכה מלאה לכל אורך הפרויקט על ידי סופרוויזרים של חברת פרי ישראל בשיתוף עם סופרוויזר מומחה למערכת הVBC ,שהגיע מחו“ל.
הפרויקט
רשמים מתהליך הפרויקט
יציקת המיסעה באמצעות מערכת VBC ואת ראשי הפטיש באמצעות מערכת VARIOKIT על מגדלי תמיכה מסוג PERI UP.
יציקת הניצבים באמצעות תבניות ואריו על גבי פלטפורמות מסוג CB ופלטפורמות מסוג SP, המטפסות באמצעות מנוף.
חתך המראה את הפתרון ליציקת נציב הגשר.
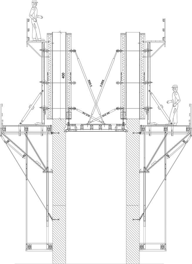
יציקת ראשי הפטיש באמצעות מערכת תבניות מסוג VARIOKIT על גבי מגדלי PERI UP. המגדלים הועמדו על פלטפורמות העמסה מסוג SB שנתלו אופקית על הנציב.
חתך המראה את הפתרון ליציקת ראש הפטיש של הניצבים.
יציקת המיסעה באמצעות מערכת מסוג VBC (VARIOKIT Balanced Cantilever) עם תבניות VARIOKIT.
חתך המראה את פתרון מערכת VBC ליציקת מיסעת הגשר.
אורך היציקה הינו 5.3 מ' בכל מקטע. מערכת הVBC מתקדמת באמצעות ציוד הידראולי מלא לכיוונון התבנית ושינועה.
גשר באורך 380 מ', במחלף מוצא, המחבר את כביש 1 עם המנהרות המובילות לירושלים.
מערכת הVBC מצויידת בסט הידראולי מלא המאפשר כיוונון ושינוע התבניות כמו גם שינוי החתך תוך כדי תנועה.
מבט על על מערכת הVBC ליציקת מיסעת הגשר.
יציקת ראשי הפטיש באמצעות מערכת VARIOKIT ויציקת מיסעת הגשר באמצעות מערכת VBC.
יציקת המיסעה מתבצעת במקטעים של 5.3 מ' משני צידי הנציב באופן סימולטני ומאוזן.
יציקת המיסעה באמצעות מערכת VBC ואת ראשי הפטיש באמצעות מערכת VARIOKIT על מגדלי תמיכה מסוג PERI UP.
יציקת הניצבים באמצעות תבניות ואריו על גבי פלטפורמות מסוג CB ופלטפורמות מסוג SP, המטפסות באמצעות מנוף.
חתך המראה את הפתרון ליציקת נציב הגשר.
יציקת ראשי הפטיש באמצעות מערכת תבניות מסוג VARIOKIT על גבי מגדלי PERI UP. המגדלים הועמדו על פלטפורמות העמסה מסוג SB שנתלו אופקית על הנציב.
חתך המראה את הפתרון ליציקת ראש הפטיש של הניצבים.
יציקת המיסעה באמצעות מערכת מסוג VBC (VARIOKIT Balanced Cantilever) עם תבניות VARIOKIT.
חתך המראה את פתרון מערכת VBC ליציקת מיסעת הגשר.
אורך היציקה הינו 5.3 מ' בכל מקטע. מערכת הVBC מתקדמת באמצעות ציוד הידראולי מלא לכיוונון התבנית ושינועה.
גשר באורך 380 מ', במחלף מוצא, המחבר את כביש 1 עם המנהרות המובילות לירושלים.
מערכת הVBC מצויידת בסט הידראולי מלא המאפשר כיוונון ושינוע התבניות כמו גם שינוי החתך תוך כדי תנועה.
מבט על על מערכת הVBC ליציקת מיסעת הגשר.
יציקת ראשי הפטיש באמצעות מערכת VARIOKIT ויציקת מיסעת הגשר באמצעות מערכת VBC.
יציקת המיסעה מתבצעת במקטעים של 5.3 מ' משני צידי הנציב באופן סימולטני ומאוזן.
מידע על פרויקטים
האם אתה עובד על פרויקט כזה?
נשמח ללוות אתכם בדרך להצלחה - חייגו עכשיו: 03-9249332
נשמח ללוות אתכם בדרך להצלחה - חייגו עכשיו: 03-9249332